REQUEST A TOUR If you would like to see this home without being there in person, select the "Virtual Tour" option and your agent will contact you to discuss available opportunities.
In-PersonVirtual Tour

Listed by Gi'angelo Bautista Achievers Real Estate & Loans
$208,888
Est. payment /mo
3,750 Sqft Lot
UPDATED:
Key Details
Property Type Vacant Land
Sub Type Residential Lot
Listing Status Active
Purchase Type For Sale
MLS Listing ID 425012999
HOA Y/N No
Lot Size 3,750 Sqft
Acres 0.0861
Property Sub-Type Residential Lot
Property Description
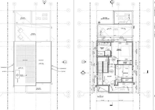
Designed by Baran Studio Architecture, this residential vacant lot has approved plans for a modern residential house with ADU's. The design includes a three-story single family residence with 4 beds & 2.5 baths, a garage, a junior ADU with 1 bed & 1 bath, and along with a detached one-story ADU featuring 2 beds & 2 baths. With a total living area of 2,830. on a 3,750 sq. ft. lot, this property is primed for construction. Conveniently, this property is located minutes away from downtown Oakland, BART, and Emeryville's shopping and dining, and offers a great opportunity for investors and buyers looking to create their primary residence with rental income potential.
Location
State CA
County Alameda
Area Oakland Zip 94607
Interior
Fireplace No
Exterior
Utilities Available Electricity Not Available, None
Building
Sewer None
Water None
New Construction No
Schools
School District Oakland Unified
Others
Tax ID 0050451012
Read Less Info

GET MORE INFORMATION

Rebecca Brooks
San Francisco Bay Area Team Leader/Broker Associate | License ID: 1249870
San Francisco Bay Area Team Leader/Broker Associate License ID: 1249870




